热线电话 18238881583 / 注册

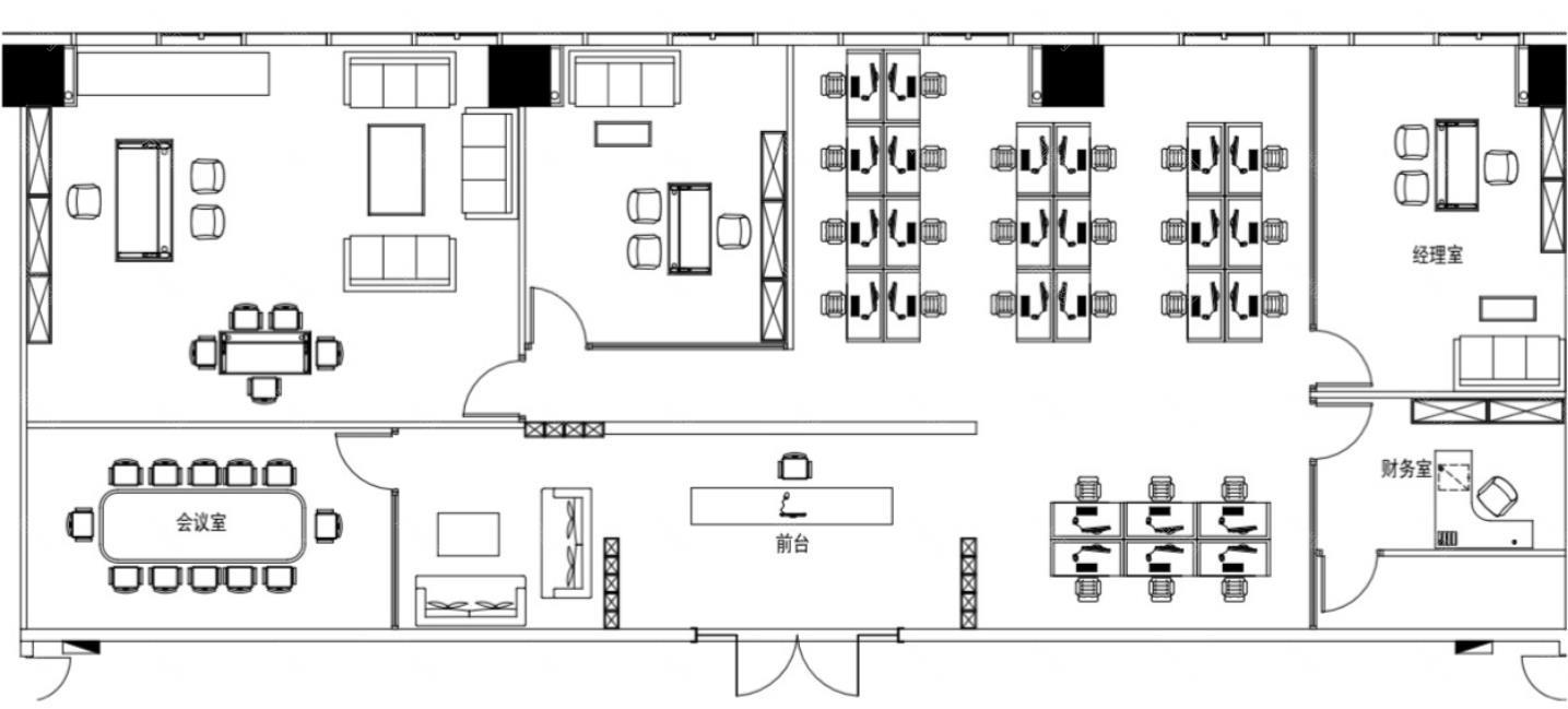
比克科技大厦 5隔间1办公区 486㎡ 33000元,办公写字楼出租

租客免佣 视频房源 有电梯
33000 元/月 2.23元/㎡/天
关注
询底价
  • 486 平米
    建筑面积
  • 20-30人
    容纳人数
  • 精装修
    装修情况

  • 范昆
    范昆 招商主管
    13244770313
    在线聊
    预约看房
房源信息
基础信息
  • 房源编号
  • 使 用 率
  • 朝  向
  • 电 梯 口
  • 结  构
  • 所在楼层
  • 注册公司
  • 电梯数量
相关费用
  • 物业费用
  • 空调费
  • 停车费用
租赁信息
  • 免 租 期
  • 押付方式
  • 最短租期

推荐顾问

  • 袁椿婷 招商经理
    13244771382
  • 文惠忠 租赁经理
    13249399364
  • 李俊超 招商总监
    13249399197
  • 张毅 项目经理
    13242435667

房源描述

比克科技大厦 5隔间1办公区 便宜出租

所属大厦

  • 大厦名称
  • 大厦均价
  • 地址位置
  • 物业公司
  • 物业费用
  • 停车信息
在线聊天